/
Descrizione
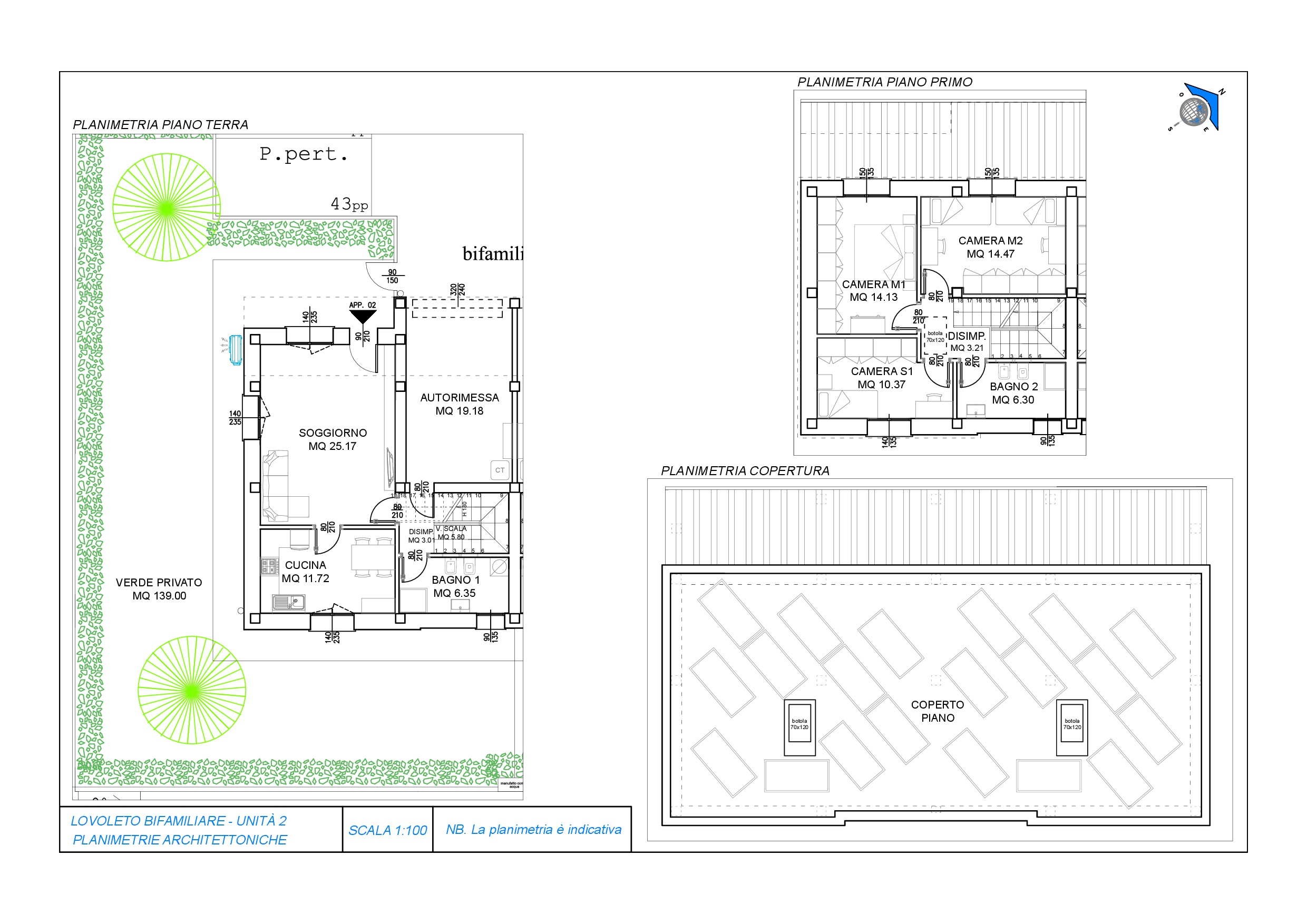
GRANAROLO – NUOVA LOTTIZZAZIONE FRAZ. LOVOLETO
Villetta bifamiliare composta da n. 2 unità immobiliari indipendenti con cortile carrabile in comune in cui ci sono i posti auto privati.
La villetta si sviluppa su due piani, al piano terra è composta da: soggiorno, cucina abitabile e bagno; dalla scala interna si accede al piano superiore in cui ci sono due camere da letto matrimoniali, una camera singola e il secondo bagno.
Ampio giardino privato, autorimessa e posto auto privato, completano il piano terreno.
Il riscaldamento sarà autonomo con pannelli radianti a pavimento e sulla copertura saranno installati i pannelli solari-fotovoltaici a servizio delle singole unità immobiliari.
Posizione
Galleria
Altri Appartamenti
I cantieri attivi