GRANAROLO-Lovoleto Villetta bifamiliare – Unità 1

in vendita

/

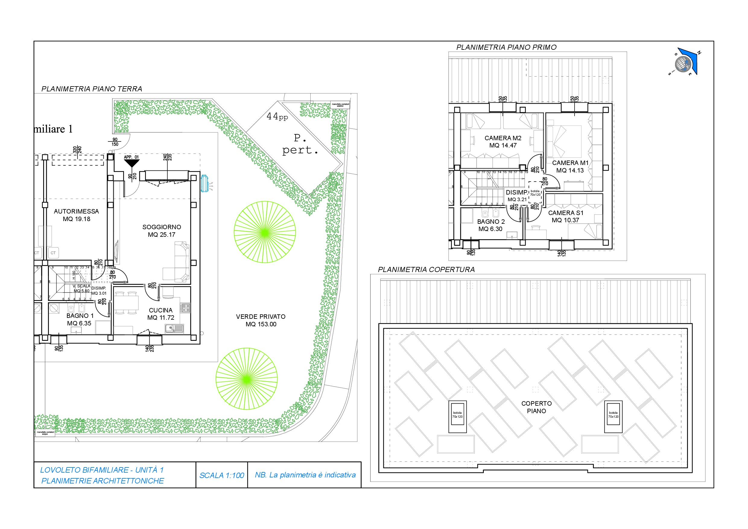
  • Piano Primo
  • Piano Terra
Click per zoomare

Descrizione

GRANAROLO – NUOVA LOTTIZZAZIONE FRAZ. LOVOLETO

Villetta bifamiliare composta da n. 2 unità immobiliari indipendenti con cortile carrabile in comune in cui ci sono i posti auto privati.
La villetta si sviluppa su due piani, al piano terra è composta da: soggiorno, cucina abitabile e bagno; dalla scala interna si accede al piano superiore in cui ci sono due camere da letto matrimoniali, una camera singola e il secondo bagno.
Ampio giardino privato, autorimessa e posto auto privato, completano il piano terreno.
Il riscaldamento sarà autonomo con pannelli radianti a pavimento e sulla copertura saranno installati i pannelli solari-fotovoltaici a servizio delle singole unità immobiliari.

Posizione

I cantieri attivi

Richiedi informazioni

L’esperienza maturata in  60 anni di attività, le capacità tecniche e produttive dell’azienda oltre ad una notevole solidità economica, sono i presupposti per lo sviluppo di nuovi cantieri e garanzia per i nostri clienti di un investimento sicuro.

Compila il seguente modulo per richieste e informazioni.

I campi contrassegnati con * sono obbligatori. 

EDILPIANORO S.r.l.

Via Del Lavoro, 2 – 40065 Pianoro (BO)
Tel 051 6517511 – Fax 051 6517537